Just Listed

I’m Ready For My Next Chapter

Step into the relaxed coastal lifestyle with this charming 3-bedroom home, perfectly positioned just around 700 metres from the golden sands of Coffs creek estuary at the Park Beach Reserve within the prestigious Jetty area. This is a rare opportunity to secure a home where the surf, sand and restaurant/café culture are all within easy reach.

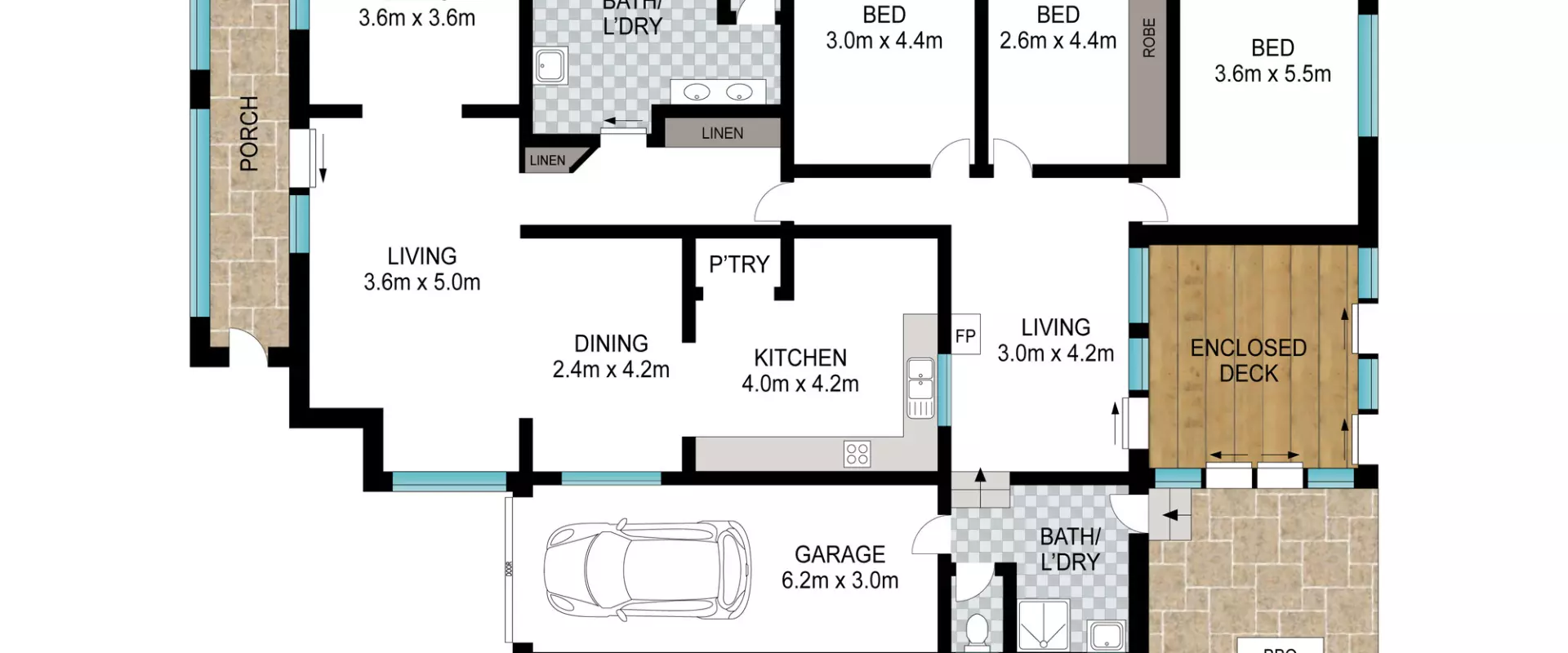
Brimming with potential, the home is in great condition and ready for its new chapter. The living and bedroom areas feature timeless timber floors, the large kitchen would make a great home for any MasterChef with plenty of bench and storage space, from the kitchen you look out through the enclosed verandah area out to the treed backyard.

A separate sun filled living area flows off the open plan family dining area with air conditioning, and from there you progress through to the kitchen.

The private enclosed verandah is the perfect spot for a morning coffee or evening unwinding.

The 3 bedrooms are large and 2 include built-in wardrobes and fans, each bedroom has separate air conditioning unit. The bathroom offers a large layout with a level access shower for a wheelchair, it has a toilet, vanity and washing machine facilities within the main area of the bathroom plus another separate toilet. Second shower and a third separate toilet downstairs.

 Single garage provides secure parking with a carport at the front. The great sized fully fenced backyard is large and private, perfect for the pets or kids to play in.

What truly sets this property apart is its location, in a high-quality sought-after area of Coffs Harbour Jetty/Park Beach precincts, you will be located within minutes to popular Beaches, schools, and shopping centres. 2 klm drive to the Jetty restaurant strip and shopping centre. Park Beach Plaza is a close 2.4 klm drive for all your shopping needs, while the recently refurbished Park Beach Bowling Club, the vibrant Hoey Moey, fine dining at 99 on Park and latitude 30, Yacht club, and Jetty Beach House are all just minutes away. Coffs CBD is only 2.4 Klms away also, this is truly a central location for everything you need in Coffs Harbour.

Whether you’re looking for a beachside retreat, a place to transform into your dream home, or a savvy investment in a tightly held pocket, this home offers the ultimate lifestyle opportunity in the heart of Coffs Harbour’s coastal hub.

This home is a beautiful gem and should not be missed, Homes in this location that are private and peaceful are becoming exceedingly rare.

Call Andrew Dykes 0419 710 577 today to arrange your personal inspection.

 

Property Features

* “Peaceful and Private, Your Coastal Escape Awaits”

* “Easy walk to beaches, Coastal Living – Just 700m to Coffs Creek Estuary”

* 803 m2 Easy Care block, Renovator’s Opportunity”

* “Sought After Location, Beachside Retreat with Endless Potential”

 

Call Andrew Dykes 0419 710 577 today to arrange your personal inspection.

 

 

All information contained herein has been supplied to us or has been gathered together from sources we consider reliable. Whilst every care has been taken in obtaining and gathering the information, we give no warranty or guarantee to the accuracy of the information. We encourage all interested parties that they should rely on their own investigations and research directly information in relation to this property. All distances and drive times are as per google maps.

Features

Verandah Barbecue Indoor entertainment area Undercover outdoor area Fenced Fireplace Skylight Smoke Alarms Close to beach Level Block Close to school Secure Parking Solar Hot Water Built-in wardrobe Air conditioning Dishwasher Alarm System Floorboards Close to CBD Beachside Close to Shopping Deck
3 2 2 803 m2
Address 27 Watsonia Ave, Coffs Harbour
Price AUCTION On-Site Saturday 15 November 25 @ 10am
Property Type Residential
Property ID 542
Category House
Land Area 803 m2
Floor Area 225 m2

Inspections

  Saturday 18 October 10:00 AM - 10:30 AM

Agent Details

Andrew Dykes photo

Andrew Dykes

0419 710 577
View Profile