AMAZING DA APPROVED BLOCK CLOSE TO CBD

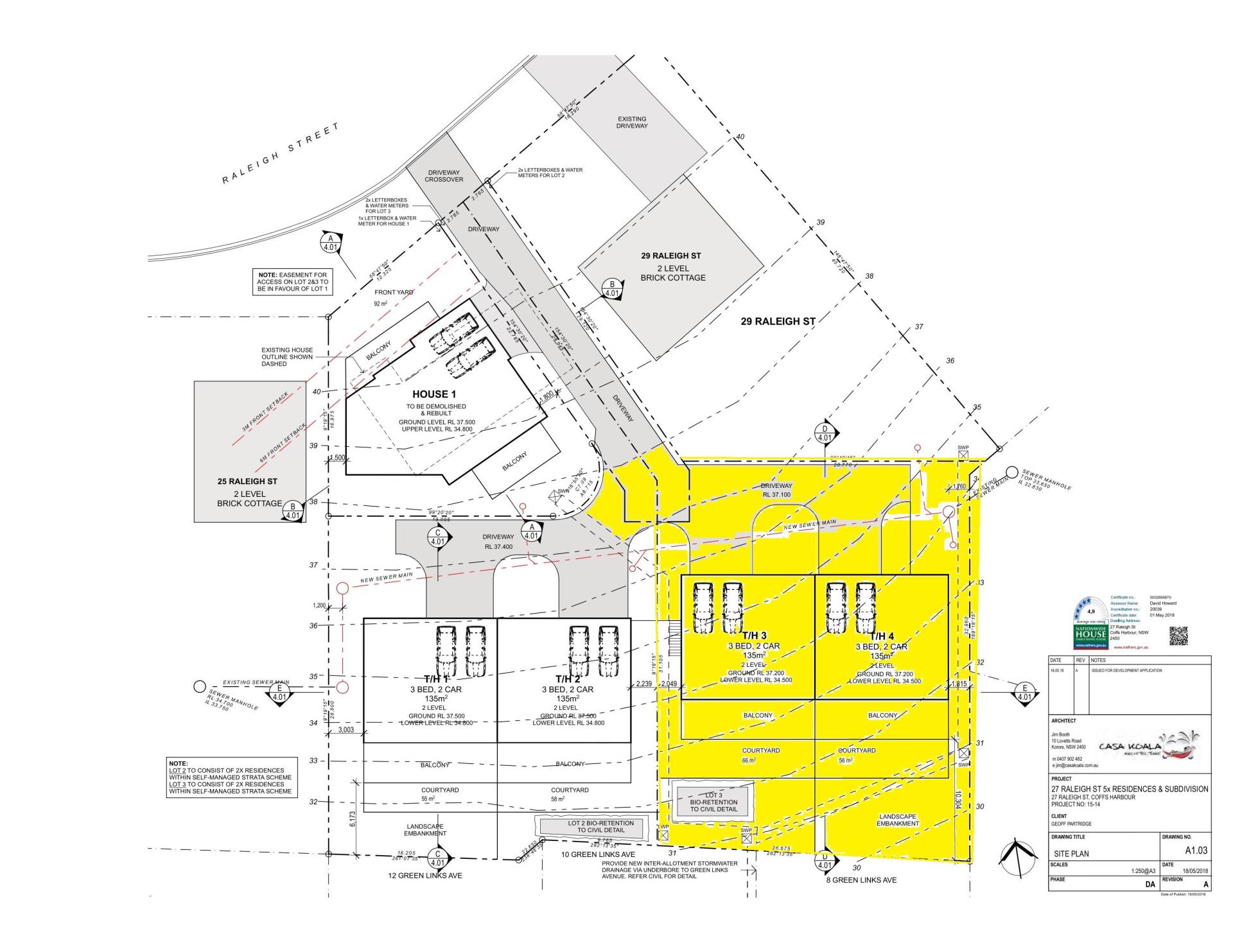
969m2 block with DA approved dual occupancy plans, or build your dream home here,  .

A special opportunity is available here, as not many blocks have a sensational view like this and walking distance to the Coffs Harbour CBD and Coffs Harbour golf course.

This amazing block has sensational ocean and coastline views all the way to Pickett Hill down at Valla.

Don't miss this chance to buy a large 969m2 block in the centre of Coffs Harbour with ocean views, enquire today for more information, call Andrew Dykes 0419 710 577

POINTS OF INTEREST

- Premium location with sensational ocean and coastline views.

- 969.2m2 block.

- Architecturally designed plans, ready to build.

- Elevated hilltop position with golf course views.

- Around 2 minutes’ drive to CBD & 5 minutes to the Jetty precinct.

 

 

 

All information contained herein has been supplied to us or has been gathered together from sources we consider reliable. Whilst every care has been taken in obtaining and gathering the information, we give no warranty or guarantee to the accuracy of the information. We encourage all interested parties that they should rely on their own investigations and research directly information in relation to this property. All distances and drive times are as per google maps.

969 m2
Address Proposed Lot 3, 27 Raleigh Street, Coffs Harbour
Price $900,000
Property Type Residential
Property ID 474
Category Vacant Land
Land Area 969 m2

Agent Details

Andrew Dykes photo

Andrew Dykes

0419 710 577
View Profile